- 收藏
- 加入书签
某优秀历史保护建筑医院用房房屋质量综合检测
摘要:主体结构建于1931年的某优秀历史保护建筑,后期经过加层、结构改造、加固等,使用方为了修缮前对房屋整体情况有所了解,对该房屋进行检测,了解房屋目前的损坏状况、内部结构构造,同时分析房屋的安全状况及抗震能力,对于后期修缮提供指导意义。
关键词:优秀历史保护建筑修缮;混合结构;加层加固改造;检测鉴定;安全与抗震分析。
1 房屋概况
房屋为一幢四层混合结构,主体结构始建于1931年,由建筑师 W·李文·戈登士达设计建造,原为教堂钟楼,主体结构原为两层,平面呈凹形。1976年,将房屋局部区域加建了二层砖混结构。目前房屋一层主要作为急诊用房、药房,二层主要作为门诊用房,三层作为康复治疗中心,四层作为康复病房。
2 房屋建筑特色与风格
房屋总体上表现为当时流行的折衷主义建筑风格,既继承古典主义建筑传统,又融合了多种现代建筑理念。其外立面、内部礼拜堂、空间布局、彩色烤瓷地砖及门窗等十分独特,具有较高的艺术价值,房屋保护类别为三类[1]。房屋外立面总体上讲究建筑的对称、规律、简洁等特性,以南立面为主立面,采用古典扶壁柱为构图基础,壁柱上带有柱身凹槽,顶部采用串珠线脚连成矩形框进行装饰;总体上突出轴线,强调对称,注重比例,讲究主从关系,使房屋整体呈“崇高”之美,气势更加宏伟。钟楼中部设有象征哥特教堂的八边形塔楼,塔楼各边采用爱奥尼柱式及半圆形拱券构图,顶部安放十字架(十字架灭失),檐口底部均匀设置涡卷支撑,钟楼两侧亦设置较多装饰;东翼南立面山墙设有精致的花环饰山花,屋面檐口底部统设齿状线脚,上部采用栏杆柱式女儿墙。礼拜堂区域平面呈长方形,大厅被两排连续半圆形拱劵柱将其分成中殿及两个侧廊,其终端是供奉圣坛的半圆形龛,为典型的中廊高、侧廊低的三廊形的巴西利卡式布局,其形状总体表现了“天圆地方”的概念。两侧廊柱爱奥尼柱式,二层走廊两侧设有栏杆柱式栏杆,天顶采用象征哥特教的八边形构图,四周设齿状线脚。总体上,大厅的教堂氛围非常强烈。
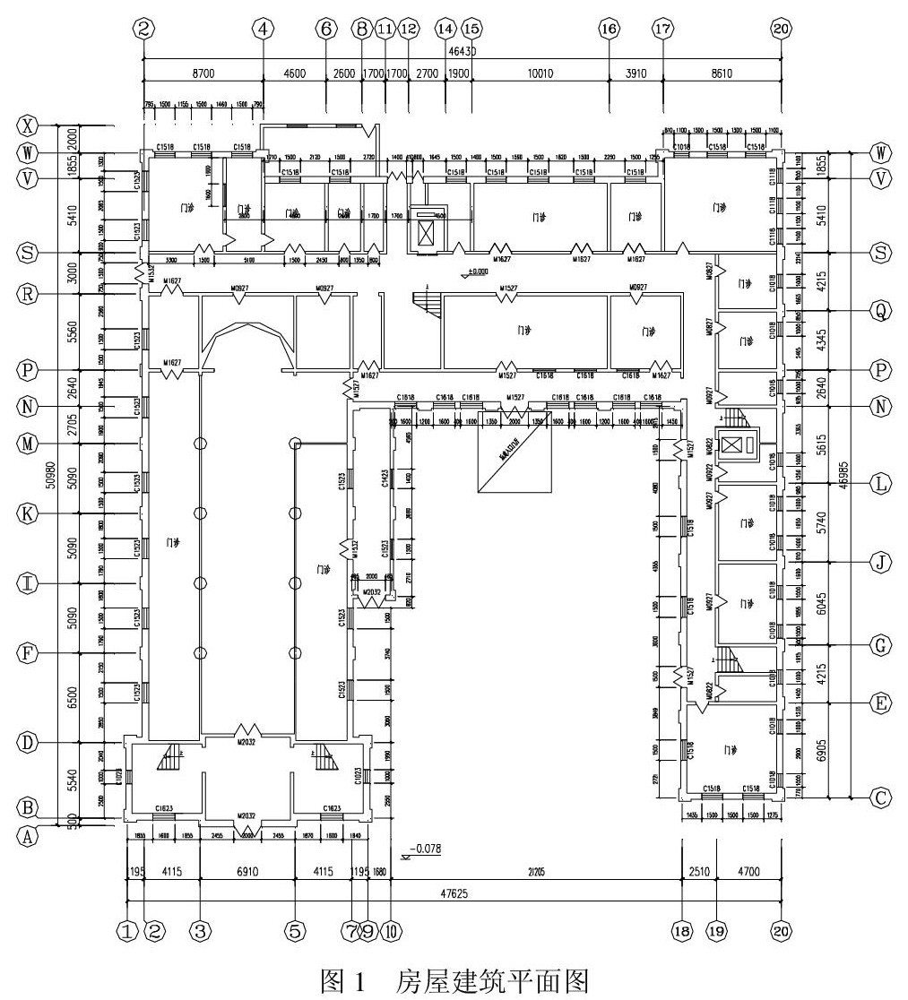
3 建筑概况
房屋建筑平面呈“凹”形,南北方向总长50.98m,东西方向总宽47.625m。
根据原设计图纸,房屋一层层高4.267m,二层楼板底至木屋架底净高3.658m,室内外高差1.219m,屋脊至室外地坪总高13.411m,钟楼塔楼总高26.518m。近90年来由于房屋自然沉降及室外路面多次填高,目前西翼南入口室内外高差约0.078m。房屋北侧加层三层、四层层高均为3.60m。
房屋共设置四部楼梯,其中两部位于门厅两侧,作为礼拜堂主要竖向通道,连通礼拜堂及塔楼,塔楼中部设置旋转式钢楼梯;另外两部分别位于北侧主体中部及东翼南侧,作为生活区域的主要竖向通道。
外立面采用水刷石饰面(先粉刷水泥黄砂浆找平,略干后,活水并粉刷水泥石子粉面,在水收干过程中,用清水将表面的水泥清洗干净,成水刷石粉面);内墙面主要采用混合砂浆抹面、涂料饰面;地面主要采用地砖饰面。
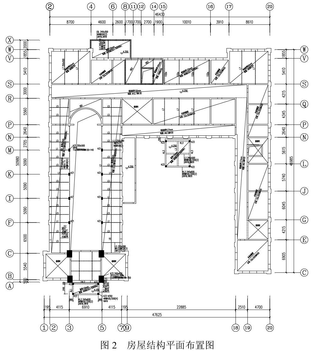
4 结构概况
该房屋整体为四层混合结构,2~7/D~P轴和1~9/A~D轴一、二层范围内的结构形式为内框架结构,房屋1~9/A~D轴三层及以上范围为剪力墙结构,房屋1~20/N~W轴范围,一、二层为砖木结构,加建二层为砖混结构;房屋18~20/C~L轴位置为砖木结构。结构介绍主要可为4块区域进行介绍:
(1)2~7/D~P轴和1~9/A~D轴一、二层范围内的结构形式为内框架结构。外墙厚470mm,青砖、石灰泥砌筑。中部为矩形混凝土柱,截面尺寸为500mm×350mm,纵向配筋为6根边长16mm的方钢,箍筋为长11mm,宽9mm,表面带肋的椭圆形钢筋,间距约为130mm~140mm。二层3~5/D~P轴范围内中空,形成挑高的中部空间,二层除中空部分外沿纵横轴线设有钢筋混凝土梁,其中纵向框架梁的截面尺寸为508×457.2mm,下部纵筋为4φ19,箍筋为φ6.35@101.6mm,横向框架梁的截面尺寸为254×381mm,下部纵筋为3φ25.4,纵横框架梁之间设有一纵二横混凝土次梁,截面尺寸均为254×279.4mm,其中纵梁的下部纵筋为3φ1,箍筋为φ6.35@127mm,横梁的下部纵筋为3φ12.7,箍筋为φ6.35@127mm,该范围内楼板为现浇楼板,板厚76.2mm,下部纵横向配筋均为φ9.53@177.8mm。该部分的屋面为木屋架结构,3~5/D~P轴范围内利用木格栅形成穹顶,木屋架采用美松,屋面上弦檩条截面尺寸为75×100,间距820mm,上铺防水油毡和瓦,屋架下弦格栅截面尺寸为40×70mm,间距400mm。
(2)房屋房屋1~9/A~D轴三层及以上范围,3~5轴处设有高26.518m(87′0″)的圆形塔楼,采用剪力墙结构。1~3轴和5~8轴处为两层楼梯间区域,均为钢筋混凝土现浇屋面结构。
(3)房屋1~20/N~W轴范围,一、二层为砖木结构。竖向由砖墙承重,一层外墙厚470mm,内墙厚220mm,二层外墙厚360mm,内墙厚220mm,墙体的砌筑材料为青砖、石灰泥。二层楼面中,走廊为钢筋混凝土现浇楼面,北侧走廊板厚152.4mm,受力向配筋为φ12.7@127mm,南侧走廊板厚127mm,受力向配筋为φ9.52@95.25mm。两侧房间楼面为木楼面,其中格栅搁置在纵向墙体上,截面尺寸为50mm×300mm,大部分间距为400mm~410mm。该区域范围处的屋面原为木屋架结构,1979年拆除原屋面加建两层,加建部分为砖混结构,具体情况见房屋1976年改造情况。
(4)房屋18~20/C~L轴位置为两层砖木结构,一层外墙厚470mm,内墙厚220mm,二层外墙厚360mm,内墙厚220mm,墙体的砌筑材料为青砖、石灰泥。二层楼面中走廊为钢筋混凝土现浇楼面,走廊板厚127mm,受力向配筋为φ9.52@95.25mm,房间楼面为木格栅楼面,截面尺寸为50mm×300mm,大部分间距为400mm~410mm。该范围处的屋面为木屋架结构,木屋架采用美松,屋面檩条的截面尺寸为70mm×95mm,间距为930mm,上铺防水油毡和瓦,屋架下弦檩条的截面尺寸为40×70mm,间距为350mm。
经现场对W/17轴处墙脚基础进行开挖并复核原设计图纸可知,房屋的基础原为砖大方脚条形基础,大放脚下为素混凝土,大部分外墙的基础宽度约为1828.8mm,内部纵墙的基础宽度约为1524.0mm,内部横墙的基础宽度约为1066.8mm,基础埋深为1.2m~1.4m。2003~2004年修缮改造时对房屋基础采用扩大截面法(做成刚性基础)进行了加固。房屋内框架柱的基础为钢筋混凝土独立基础,基础尺寸2133.6×2133.6mm,塔楼下基础也为钢筋混凝土独立基础,基础尺寸约为3657.6×3657.6mm,基础下打有长约9m的木桩。
5 房屋修缮及改造加固情况调查
1)1931年~1948年改造情况
房屋(7~1/9)/G~N轴范围新建了一层的砖混结构,具体建造年代不详,墙体厚为380mm,高度与原楼面一致。
2)1976年改造情况
据委托方及相关资料,1976年,房屋改造主要涉及两个方面:(1)局部楼板((3~5/D~P轴)洞口封堵,新增楼板采用东西方向搁置的预制板;(2)对房屋北侧主体加建二层。房屋北侧主体(1~20/N~W轴和18~20/L~N轴)拆除原双坡屋面,加建二层砖混结构,屋面为平屋面,加建墙体厚240mm,采用普通砖和混合砂浆砌筑,原部分四层横墙采用空斗墙。三层楼面除卫生间处为现浇板楼面外,其余均改为预制板楼面,预制板搁置在纵墙上,在预制板的搁置位置处设置有截面尺寸为240×200的圈梁,上部纵筋为2φ8,下部纵筋为2φ12,箍筋为φ6@200mm。当加层横墙位置与下部横墙位置重合时,在下部横墙位置顶部也设置有钢筋混凝土圈梁,当加层横墙位置无下部横墙时,在该处设置有钢筋混凝土梁,梁搁置在两侧纵墙之上,梁均为反梁。房屋四层楼面和屋面均采用钢筋混凝土预制楼板,预制板搁置在横墙上,大部分的预制板厚为95mm,部分跨度大于5m的预制板厚为150mm。四层和屋面沿纵向墙体处设置有圈梁,圈梁兼做过梁。房屋屋面为结构找坡,屋面做法由上至下依次为;油毛毡防水层,30mm厚细石混凝土找平层,预制板,板底粉刷。改造时在8~11/S~T轴位置增设电梯间和楼梯间,电梯间为一~四层,楼梯间仅三、四层有。
3)2003年~2004年修缮改造情况
根据收集到的2003年~2004年期间的修缮竣工图纸图纸,2003年~2004年的修缮改造包括的主要内容有:(1)1976年改造时(3~5/D~P轴)区域洞口增加的预制板拆除。(2)对房屋原有结构进行加固、修缮,具体内容为,a)基础加固,加固位置为S轴、19轴/E-S轴、J轴/9-16轴、16轴/S-V轴和16轴/P-Q轴,加固方法采用扩大截面法(做成刚性基础);b)房屋一、二层承载力不足的内墙采用现浇钢筋混凝土夹板墙进行补强,板墙厚度不低于70mm,加固位置同基础加固,其他内外墙体采用钢筋网砂浆面层加固。内部纵横墙交接处增设钢筋混凝土柱,二层楼面处增设圈梁,位置同基础加固;c)四层空斗墙拆除,重新砌筑实心承重墙;f)原屋原有的墙体、楼板裂缝、混凝土构件锈胀等进行修缮补强。(3)19-20轴/L-N轴楼面开洞,改为与主体结构脱开的现浇钢筋混凝土结构的楼电梯间,柱截面尺寸为350mm×350mm,主梁截面尺寸为250mm×500mm。(4)房屋L轴/4-10轴以北新建单层砖混结构泵房,与主体结构无可靠连接。(5)房屋西翼南侧新建单层钢筋混凝土框架结构的大厅门廊,柱网尺寸为5.6m×2.1m,柱为直径350mm的圆形柱,框架梁为240mm×600mm的矩形梁,屋面板为厚度110mm的现浇钢筋混凝土板,新建门廊与房屋主体结构不相连。(6)房屋中部门厅新建单层门廊,柱网尺寸为5.0m×5.28m,柱为直径350mm的圆形柱,框架梁为240mm×500mm、240mm×600mm的矩形梁,屋面板为厚度110mm的现浇钢筋混凝土板,新建门廊与房屋主体结构不相连。(7)二层8~12/S~V、15~16/S~V区域拆除原楼面,新增混凝土现浇楼面,板厚为120mm,分布筋为φ8@200。(8)房屋四层部分的屋面增设反梁,采用轻钢结构进行平改坡。
6 现场检测与复核
6.1 主要建筑尺寸复核
现场采用激光测距仪、钢卷尺、全站仪等对房屋建筑、结构及加固修缮情况进行了现场复核和测绘。实测房屋南北方向总长、东西方向总宽、房屋层高与原设计基本相符。
6.2 加固情况复核
本次仅对加固的位置、尺寸、配筋间距等情况进行无损复核、检测,现场复核检测可知,房屋加固修缮的位置、尺寸、配筋间距情况基本和图纸一致。
6.3 倾斜测量
房屋所测测点在南北方向主要向北倾斜,最大测点倾斜6.4‰,在东西方向上无明显规律,最大为G点向东倾斜5.0‰,所测测点倾斜率均低于《优秀历史建筑修缮技术规程》(DGJ080108-2014)[2]中关于二级修缮所规定的10‰的限值要求。
6.4 相对高差测量
房屋在南北方向上存在南高北低现象,东西方向上未见明显的规律,与房屋倾斜测量结果基本一致,局部不均匀沉降换算倾斜率最大为6.9‰。
6.5 完损检测
(1)外立面完损检测:经现场检测及综合分析,并对照原设计图部分立面图,立面建筑形式及装饰基本与历史图纸相符。目前房屋北侧部分(2~20/L~W区域)由原建二层加层至四层,其余部分层数与原设计一致,目前房屋立面主要存在外墙水刷石局部修补(色差较大),部分入口处加建雨棚、局部有加建,教堂塔楼顶部装饰十字架灭失,原钢窗全部被替换为铝合金窗,水刷石装饰、雕饰破损,外墙面多处挂设空调外机、线缆及增设雨水管,GRC檐口装饰线条铁胀、破损严重。(2)塔楼完损检测:塔楼主要存在外墙局部修补痕迹、与原墙面有色差,钟楼二层玫瑰花窗改动,内墙面及平顶多处渗水、涂料起皮脱落,南窗黏贴彩绘线条老化、脱落,钢楼梯护栏柱脚节点松脱、失效,铜钟钢梁锈蚀,百叶窗铁胀、开裂等,局部存在安全隐患。(3)楼梯间完损检测:经现场检测,门厅两侧楼梯水磨石踏步镶嵌马赛克装饰,水磨石栏板及楼梯整体格局保存基本完好,主要存在楼梯间墙面大面积渗水、涂料起壳脱落,水磨石墙裙局部开裂,踏步局部破损,休息平台水磨地坪石开裂等。北侧楼梯目前仅天花线脚装饰、中部水磨石栏杆保存基本完好,其余踏步、墙裙、扶手等均已翻改,非历史原物。东侧楼梯目前仅内侧水磨石栏杆保存基本完好,其余均已翻改,非历史原物。(4)礼拜堂及天花完损检测:礼拜堂仅一层基本格局保存完好,一层原门扇门洞、二层部分壁龛及穹顶灭失,二层部分原壁龛砌墙封堵与原穹顶间拼缝处开裂。礼拜堂天花及装饰细节保存基本完好,主要存在柱脚装饰颜色涂料局部脱落,天花板局部开裂等。(5)彩色面砖及原彩色镶嵌玻璃完损检测:彩色面砖主要存在局部被花岗岩及水磨石面砖替换,彩色面砖填缝缺失,局部面砖开裂、破损,铺贴错乱、龃龉,面砖污损等。原钢门窗及彩色玻璃已全部灭失,目前两侧窗户已替换为铝合金窗户,玻璃按照原色重新烧制,图案纹饰采用贴纸黏贴替代,贴纸粘贴彩色图案破老化、破损严重等[3]。(6)一般部位完损检测:一般部位目前主要存在墙面局部渗水、涂料起皮脱落,墙面砖局部空鼓松动、开裂、脱落,吊顶局部渗水发霉、龙骨锈蚀、松脱,预制板拼缝多处存在,木屋架及木格栅局部受潮,彩钢板坡屋面屋面板锈蚀、变形、轻钢构件锈蚀,屋面护栏栏杆及栏板铁胀、开裂等情况,局部存在安全隐患。
6.6 材料强度检测
房屋一层、二层墙体主要采用青砖、石灰砂浆砌筑,三层、四层为后期加层,墙体采用标准砖、水泥砂浆砌筑。根据现场测试条件和房屋结构特点,对检测房屋墙体砖强度的测试采用砖回弹法进行检测,对砂浆强度的测试采用砂浆贯入法进行检测。房屋一层~二层墙体砖强度等级均推定为MU7.5,三~四层墙体砖强度等级推定为MU10,房屋一~二层墙体砂浆强度推定为M2.0,三~四层墙体砂浆强度推定为M3.7。
对房屋部分柱、梁构件混凝土抗压强度采用回弹法进行抽样测试,房屋一~二层混凝土强度等级推定为C15,三~四层混凝土强度等级推定为C20。
现场采用里氏硬度计测试钢筋表面硬度,表面硬度采用回弹法测定,然后换算成构件的抗拉强度值。抽查的钢筋强度一层、二层推定值在497MPa~509MPa,钢筋强度满足HRB235的强度要求;三层、四层推定值在487MPa~495MPa,钢筋强度满足HRB335的强度要求。
7 结构计算及安全分析
根据房屋结构布置情况,对房屋的结构体系进行判断和分析,并采用PKPM系列程序在不考虑地震作用的情况下对房屋上部结构进行结构分析和验算。验算结果表明,房屋大部分墙肢承载力满足要求,仅四层个别门洞间小墙肢承载力不满足要求,各层墙体高厚比基本满足要求。房屋底层、二层内框架部分的混凝土梁柱承载力基本满足要求。
8 抗震性能分析
根据《建筑抗震鉴定标准》(GB50023-2009)[4]相关规定,结合实际检测结果及房屋目前使用状况,按照抗震设防烈度为7度(0.10g)抗震设防、抗震类别为乙类建筑、A类建筑(后续使用年限30年)的要求,对房屋结构进行抗震性能鉴定,结果表明,房屋砖混结构部分抗震横墙间距及外观和内在质量、圈梁和构造柱的设置不满足抗震鉴定标准对A类建筑的要求,内框架部分砂浆和混凝土强度不满足抗震鉴定标准对A类建筑的要求。按A 类建筑要求进行抗震承载力计算,结果表明房屋墙体及内框架部分的混凝土梁柱抗震承载力满足要求。
9 结论与建议
(1)房屋目前损坏为一般损坏房,主体结构目前可满足正常使用要求,但房屋局部存在安全隐患,应立即排除。
(2)建议对房屋目前存在的安全隐患及时排除;对其他损坏进行对症修复。
(3)考虑到GRC线条破损、脱落隐患严重,建议拆除剩余的GRC线条,后期恢复可以更换轻质耐久的材料,且应锚固到基层。
(4)对建筑结构的修缮,应不改变建筑物的原有结构体系、材料、构造与连接方式,同时应有可靠措施,保证原有结构不受损坏,新旧材料结合可靠。房屋在后期装修时,应保持房屋原有风貌现状,不应对房屋造成进一步的破坏。
(5)后期使用过程中,应重视木屋架及木格栅楼面的防水通风、保持干燥,限制房屋的使用荷载等,注重房屋日常保养,发现问题,及时采取措施,以延长房屋的使用寿命。
参考文献:
[1]上海市人民代表大会常务委员会. 上海市历史文化风貌区和优秀历史建筑保护条例[EB]. 上海, 2019.
[2]上海市工程建设规范,《优秀历史建筑修缮技术规程》(DGJ08-108-2014).
[3]上海市房屋检测中心,《上海市优秀历史建筑检测与评定指南》(2016年修订版).
[4]国家标准,《建筑抗震鉴定标准》(GB50023-2009).


京公网安备 11011302003690号