- 收藏
- 加入书签
电动汽车热泵空调系统分析
摘要:本文介绍电动汽车热泵空调系统,包括电池冷却回路、电机电控冷却回路以及热泵空调回路,热泵空调回路包括外部换热器、内部蒸发器、压缩机、水冷冷凝器以及与水冷冷凝器连接的电加热器和内部冷凝器的整个空调系统;通过内部冷凝器将循环水的热量转移到汽车乘员舱内,可实现不同工况下车辆乘员舱内空气温度调节需求,提高制热效果。
关键词:电动汽车; 电动汽车热泵空调系统;电机电控电加热器;蒸发器;冷凝器
引言
随着世界各国出台的汽车排放标准及节能降耗要求越来越高,新能源电动车的应用起来越广泛。相较于传统燃油车,电动车没有发动机提供的余热作为采暖热源,冬季的采暖制热一般采用PTC电加热的形式,PTC电加热能效比在1.0以内,冬季的驾驶室内外的温差大,在制热模式下运行时,要耗费大量的电池电能,如此,电动车的续航能力将大打折扣;对于电动车来说,保障续航能力是首要任务,所有的耗能部件均要向节能降耗靠齐,所以开发高效节能的电动车热泵空调是降低电池耗能的首选任务。
一、电动汽车热泵空调系统已有技术问题及缺陷
1.1现阶段的新能源电动车热泵空调系统主要有直接式或间接式两种形式。
1.2直接式热泵空调系统技术方案主要是在空调箱放置极端工况下需要的风暖PTC的同时,内增加一个冷凝器,制热采暖时,压缩机排出的高温高压的汽态制冷剂先经过空调箱内置冷凝器,经过风机的作用,把暖气带给驾驶室内,由于热泵空调在制热模式下,车外冷凝器当蒸发器使用,容易结霜,结霜后空调化霜需要由制热模式切换为化霜模式,化霜期间车内无热源续供,车内温度降低的同时会产生结露,当化化霜完成后继续制热模式时,结露的冷凝水会迅速蒸发,雾化后吹到热风玻璃上,产生“闪雾”现象,影响行车安全。
1.3间接式热泵空调系统技术方案主要是使用与传统燃油车一样的空调箱,使用冷却液作为传热介质,在冷却液回路中,增加一个板式换热器,制热采暖时,压缩机排出的高温高压的汽态制冷剂先经过板式换热器,把冷却液加热后,流动的冷却液体经过暖气芯体在风机的作用下,把暖气带给驾驶室内。
1.4无论是直接式或间接式热泵空调系统,车外冷凝器作为蒸发器使用后,结霜后的化霜过程中,保持驾驶室内的温度差不过大,以及解决过低温的制冷剂返回压缩机,是热泵空调系统技术研发的重点方向。
二、电动汽车热泵空调系统技术交流分析
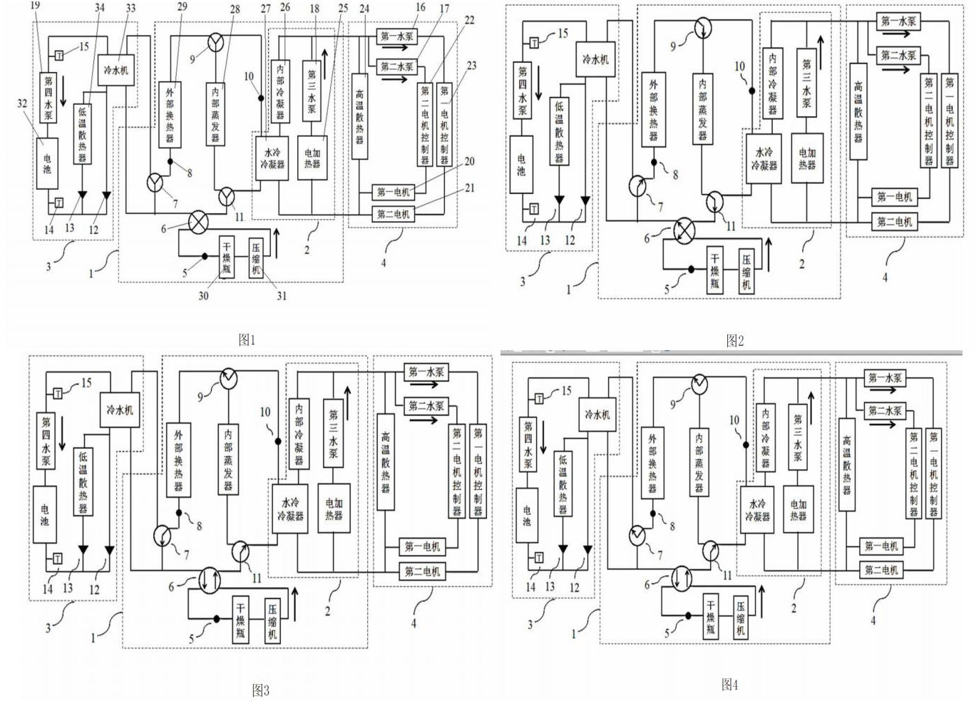
2.1图1是提供的实例一种电动汽车热泵空调系统结构原理图;图2是提供的实例一种电动汽车热泵空调系统制冷工况示意图;图3是提供的实例一种电动汽车热泵空调系统制热工况一示意图;图4是提供的实例一种电动汽车热泵空调系统制热工况二示意图。
2.2图中1、间接热泵系统;2、电加热水循环回路3、电池冷却回路;4、电机电控冷却回;5、第一温度压力安全阀;6、四通阀;7、第一双向三通阀;8、第二温度压力安全阀;9、第二双向三通阀;10、第三温度压力安全阀;11、第三双向三通阀;12、第一单向阀;13、第二单向阀;14、第一温度传感器;15、第二温度传感器;16、第一水泵;17、第二水泵;18、第三水泵;19、第三水泵;20、第一驱动电机;21、第二驱动电机;22、第一电机控制器;23、第二电机控制器;24、高温散热器;25、电加热器;26、内部冷凝器;27、内部冷凝器;28、内部蒸发器;29、外部换热器;30、干燥瓶;31、压缩机;32、动力电池;33、冷水机;34、低温散热器。
2.3具体实施方式:下面对照附图,通过对实施例的描述,对的具体实施方式作进一步详细的说明,目的是帮助本领域的技术人员对构思、技术方案有更完整、准确和深入的理解,并有助于其实施。如图1至图4所示,提供了一种电动汽车热泵空调系统,包括电池冷却回路、电机电控冷却回路以及与电池冷却回路和电机电控冷却回路连接的热泵空调回路,热泵空调回路包括外部换热器29、内部蒸发器28、压缩机31、水冷冷凝器以及与水冷冷凝器连接的电加热器25和内部冷凝器26;制热模式时,空调介质流经外部热交换器时汽化吸热,吸热后的空调介质经过压缩机31的压缩后形成高压气体,高压气体流经水冷冷凝器液化放热,将热量转移到循环水,电加热器25继续对来自水冷冷凝器的循环水加热,加热后的循环水流向内部冷凝器26,最后通过内部冷凝器26将循环水的热量转移到汽车乘员舱内,实现制热效果。该系统通过间接热泵技术可以满足在电机、电池热量小,车外环境温度低等工况下,快速且高效的制热。
2.4具体地说,如图1至图4所示,热泵空调回路还包括一第三水泵18,该第三水泵18位于内部冷凝器26和电加热器25之间且第三水泵18与内部冷凝器26和电加热器25连接,内部冷凝器26、水冷冷凝器、第三水泵18、电加热器25组成热泵空调的电加热水循环回路。热泵空调回路还包括四通阀6、第一双向三通阀7、第二双向三通阀9和第三双向三通阀11,外部换热器29与第一双向三通阀7和第二双向三通阀9连接且外部换热器29位于第一双向三通阀7和第二双向三通阀9之间,四通阀6与压缩机31、第一双向三通阀7和第三双向三通阀11连接且四通阀6位于第一双向三通阀7和第三双向三通阀11之间,内部蒸发器28与第二双向三通阀9和第二双向三通阀9连接且内部蒸发器28位于第二双向三通阀9和第二双向三通阀9之间,水冷冷凝器与第二双向三通阀9和第二双向三通阀9连接且水冷冷凝器位于第二双向三通阀9和第二双向三通阀9之间。热泵空调回路还包括干燥瓶30,干燥瓶30位于四通阀6和压缩机31之间且干燥瓶30与四通阀6和压缩机31连接。压缩机31和干燥瓶30,为空调介质提供动力和干燥,通过四通阀6改变空调介质流动方向,实现制热和制冷模式切换。制冷模式时,空调介质经过外部换热器29液化将热量转移到车辆乘员舱外;空调介质经过内部蒸发器28汽化吸热,带走乘员舱内热量,从而实现制冷作用。
2.5如图1至图4所示,热泵空调回路还包括第一温度压力安全阀5、第二温度压力安全阀8和第三温度压力安全阀10,第一温度压力安全阀5设置在四通阀6与干燥瓶30之间,第一温度压力安全阀5的一端与四通阀6的第三油口连接,第一温度压力安全阀5的另一端与干燥瓶30连接,第二温度压力安全阀8设置在外部换热器29和第一双向三通阀7之间,第二温度压力安全阀8的一端与外部换热器29连接,第二温度压力安全阀8的另一端与第一双向三通阀7的第一油口连接。第三温度压力安全阀10设置在水冷冷凝器和第二双向三通阀之间,第三温度压力安全阀10的一端与水冷冷凝器连接,第三温度压力安全阀10的另一端与第二双向三通阀连接。空调介质经干燥瓶30压缩机31依次流过外部换热器29,蒸发器形成循环。空调介质在外部热交换器处液化放热,在内部蒸发器28汽化吸热。此时在内部蒸发器28处,冷风通过车辆风道进入车辆乘员舱实现制冷效果。通过第一温度压力安全阀5和第二温度压力安全阀8反馈压力值,空调系统控制压缩机31转速以调节制冷效果。此工况下,水冷冷凝器处在非工作状态,如果乘员舱内同时需要热风,电加热器25在控制系统作用下开始工作,提高电加热器25水循环回路的水温,第三水泵18将由电加热器25加热后的循环水输送到内部冷凝器26。此时在内部冷凝器26处,热风通过车辆风道进入车辆乘员舱内。此工况下,电池冷却回路中,通过第一温度传感器14和第二温度传感器15检测的温度值,可以判断出冷水机33无冷却效果,此时第一单向阀12开启,第二单向阀13关闭,低温散热器34开始工作,电池冷却回路的循环水流经低温散热器34,降低电池冷却回路的水温。
2.6如图1至图4所示,制热模式时,汽车运行一段时间且电池冷却回路的循环水的水温达到设定值后,第一单向阀12关闭,第二单向阀13开启,循环水依次流经冷水机33、第四水泵、动力电池32、第二单向阀13和低温散热器34,对动力电池32进行冷却;热泵空调回路的空调介质流经冷水机33时,吸收热量,将电池冷却回路的热量转移到热泵空调回路,同时电机电控冷却回路的热量也转移到热泵空调回路。
2.7如图1至图4所示,电机电控冷却回路包括与第一驱动电机20和第二驱动电机21连接的高温散热器24、与高温散热器24连接的第一水泵16和第二水泵17、与第一水泵16和第一驱动电机20连接的第一电机控制器22以及与第二水泵17和第二驱动电机21连接的第二电机控制器23。第一水泵16的进水口与高温散热器24的进水口连接,第一水泵16的出水口与第一电机控制器22的进水口连接,第一电机控制器22的出水口与第一驱动电机20的进水口连接,第一驱动电机20的出水口与高温散热器24的进水口连接,第二水泵17的进水口与高温散热器24的进水口连接,第二水泵17的出水口与第一电机控制器22的进水口连接,第二电机控制器23的出水口与第二驱动电机21的进水口连接,第二驱动电机21的出水口与高温散热器24的进水口连接。第一水泵16的进水口和第二水泵17的进水口并与第三水泵18的出水口连接,第一驱动电机20的进水口和第二驱动电机21的进水口并与电加热器25的进水口连接。电动汽车热泵空调系统中增加电加热水循环回路间接地给车辆乘员舱内制热,系统通过冷水机33采集电池冷却回路热量与热泵空调回路交换,辅助热泵系统制热;同时将电机电控冷却回路热水与电加热水循环回路热水连通,辅助电加热水循环系统制热。公布系统通过电控系统,可灵活地适应电动汽车电池、电机电控系统的冷却和车辆乘员舱内空气温度调节的需求。
2.8如图3所示,在电动汽车处在高寒冷启动工况下,通过第一温度传感器14和第二温度传感器15检测的温度值,可判断出电池冷却系统水温较低,冷水机33不参与热泵空调制热。此时,四通阀6、第一双向三通阀7、第二双向三通阀9、第三双向三通阀11如图3状态。来自四通阀6的空调介质依次流经干燥瓶30和压缩机31后,经四通阀6流向第三双向三通阀11,空调介质再依次流经水冷冷凝器、第二双向三通阀9、外部换热器29和第一双向三通阀7后,流回四通阀6,形成循环。空调介质在外部换热器29处汽化吸热,在水冷冷凝器处液化放热,此时电加热系统的循环水在水冷冷凝器处温度上升。如车辆在高寒环境下行驶时,热泵系统制热效果不佳,此时电加热器25可以启动制热,可进一步提高回路水温,第三水泵18将电加热器25加热后的循环水输送到内部冷凝器26,通过车辆风道将热风带到车辆乘员舱内。此时水冷冷凝器和电加热器25同时工作,可迅速提高车辆乘员舱内温度,达到良好的制热效果。
2.9如图4是提供的实例一种电动汽车间接热泵系统制热工况二示意图。在制热模式时,电动汽车运行一段时间后,根据第一温度传感器14和第二温度传感器15的检测结果,判断出电池冷却回路的循环水温度较高时,第一单向阀12关闭,第二单向阀13开启,来自动力电池32的循环水经第一单向阀12流向冷水机33,循环水流经冷水机33后,温度降低,冷水机33单独对动力电池32进行冷却。第一单向阀12开启,第二单向阀13关闭后,来自动力电池32的循环水依次流经第二单向阀13、低温散热器34和冷水机33,冷水机33和低温散热器34可同时对电池进行冷却;此时,四通阀6、第一双向三通阀7、第二双向三通阀9、第三双向三通阀11处于如图4所示的状态,外部换热器29的出水口经第一双向三通阀7与冷水机33的进水口连接,四通阀6经第三双向三通阀11与水冷冷凝器的进水口连接,水冷冷凝器的出水口经第二双向三通阀9与外部换热器29的进水口连接,来自四通阀6的空调介质依次流经干燥瓶30、压缩机31、四通阀6、第三双向三通阀11、水冷冷凝器、第二双向三通阀9、外部换热器29、第一双向三通阀7和冷水机33,最后流向四通阀6,形成循环。空调介质在冷水机33处吸收电池冷却回路的热量,在外部热交换器汽化吸热,在水冷冷凝器处液化放热。此时水冷冷凝器将较大热量转移到电机热器水循环回路中。同时电机电控冷却回路中,驱动电机和电控系统产生热量通过水循环传递到电加热器25水循环回路中,此时电加热器25可处在低功率状态或者不工作状态。此工况下,热泵空调系统处在高效低电耗状态,充分利用电池、驱动电机、电控的热量用于车辆乘员舱内空气温度调节。
2.10通过以上图3、图4所展示热泵空调制热工况。此间接热泵空调系统,可解决车辆在高寒冷启动等恶劣工况下,空调制热效果不佳的问题。在图3所示工况下,电加热器25处在高耗能状态,保证空调制热效果,此状态相对时间较短。在车辆启动后,随着电池、电机、电控系统的热量上升,间接热泵系统可利用这部分热量用于空调制热,此时电加热器25处于低耗能状态。综合上述过程,间接热泵空调可实现良好的制热效果,同时消耗较小动力电池32电量,可以有效提高纯电动汽车的续航里程。
2.11图1至图4附图如下:
三、结论
(1)热泵空调系统具有能效比高,便于整车能量集成的特点,现已广泛应用于国内外的电动车型。相对于传统空调系统,可提升冬季续行里程35%左右。在极端寒冷条件下,因热泵能效比下降,需采用高压PTC进行辅助。
(2)热泵空调系统制热采暖模式,车外冷凝器作为蒸发器使用后,结霜后的化霜过程中,热源可持续,保持驾驶室内的温度差不过大,提高车内司乘人员的舒适性。
(3)在冬季低温时热泵空调系统可以通过三通水阀加热冷却液,在双板式换热器把热量传递给电池,使电池达到最佳工作温度。另外在某些特殊工况下,可实现电动汽车余热回收利用,提升电动汽车能量利用效率。
参考文献
[1]胡志林,张昶,杨钫,等.电动汽车热泵空调系统技术研究[J].汽车文摘,2019(5):6-11.
[2]新浪财经.新能源汽车热管理行业报告之热泵系统:电动车热泵空调系统研发加速,未来深度替代市场广阔[EB/OL].(2018-11-09).
[3]国家市场监督管理总局.中国国家标准化管理委员会.汽车空调用电动压缩机总成:GB/T22068-2018 [S].中国标准出版社,2008.
作者简介:韦党和,男,广西柳州人,本科,主管工程师,柳州易舟汽车空调有限公司,研究方向:新能源汽车空调系统制冷技术。

京公网安备 11011302003690号