- 收藏
- 加入书签
浅谈对新城市烟火主义的探索 以长沙开福区S8地块项目为例
摘 要:近年来,随着科技进步信息化时代的到来,人们的生活节奏随之加快,整个社会倡导不仅要关注人的理性需求,也要关注大家精神层面的需求。在中国城市快速发展的40年中,人们的居住品质有了明显改善,但同时也伴随着城市原有记忆的消失。如今房地产经济也回归理性,深入思考居民的真正诉求;社区规划离不开城市居民们真实的生活状况,设计与人的行为方式息息相关,社区应该提供多元的空间促进邻里社交,通过场景设计重塑社区精神,创造出有温度的社交空间,激发新城市烟火主义社区。
关键词:新烟火主义;交往空间;场景设计
1.背景研究
项目位于湖南长沙,长沙是首批国家历史文化名城,具有丰厚的文化底蕴和自然资源。地块位于长沙市主城区,开福区中心板块,距离五一广场仅2KM,周边商业、医疗、教育资源齐全;临近湘江,坐拥无敌江景资源;地块东侧为黄兴北路,临近地铁1,6号线文昌阁站,交通便捷。
项目分为南北两个地块,总用地面积2.22万平米,平均容积率3.60,建筑密度35%,建筑限高150米。设计前期,我们先进行了现场考察,在地块南侧以及东北侧有大量的现状住宅,并且临近地块用地红线;地块西北侧有新竹小学,对项目后期规划均有很大的影响。地块本身地形不规则,同时黄兴北路一侧有地铁的特别保护线跟控制保护线,综合分析可知,基地虽然有优越的景观优势跟区位优势,同样周边地块的复杂性也对项目规划有着很大的限制。
2.规划思考
2.1 整体规划
长沙开福区S8地块临近长沙湘江,周边商业、景观、教育、医疗资源配置齐全,周边旅游景点资源丰富,文化底蕴浓厚。旅游都市长沙有着丰富多彩的夜生活,每条街道都在演绎着不同的城市烟火,游走长沙在长沙老街,会感受到浓浓的生活气息。所以该项目如何在这得天独厚的先天条件下,让大家愿意走出家门,将家的范围在一定程度上放大,创造一场市井文化跟生活美学的邂逅,碰撞出新的城市烟火气。
规划前期,对地块周边现状进行分析,地块南侧军分区干休所对地块规划有影响,通过对规范的仔细研究,判断出各点位处的可建设范围;同时考虑地块西北侧新竹小学的日照问题,用主客体范围线反推出北侧高层住宅的高度及位置范围。综合地块限制条件跟量化分析,确定底层配套以及高层住宅的可建设范围和大概的规模体量。
项目可建设范围确定好后,进一步对地块进行价值分析判断,沿黄兴北路以及南北地块中间布置1-2层商业配套,创造激发社区活力;沿南北地块中间油铺街道路布置相应的配套设施,商业、社区配套等联合打造超底盘社区。打造多维立体社区,底层架空泛会所空间,屋顶健身会所,增加邻里社交活动空间。
2.2超底盘配套
配套方案推敲中,我们意识到公共空间的缺失是社区活力消失的根本,打造聚合且开放的配套公共空间,激活社区活力,注入新城市烟火。地块需要设置约4500㎡商业+社区配套,强有力的配套支撑,除了可满足人们日常生活的需要,同时配置一些展示空间、休憩开放空间给城市烟火气的发生创造条件。
2层商业及配套体量,无形中将地面抬高9米;9米以上是私密的居住场所,9米以下是开放的社交场所;9米以上的居住空间让人在繁华中独享家的静谧感,这种全新的生活方式,有着别样的城市烟火气,穿着家居服踩着拖鞋下个楼,便能放肆地走进烟火气弥漫的热闹生活。同时双向入户动线,打造“垂直效能”,节省通行时间,带来空间“洄游路线”的全新体验;自由灵动的空间营造出良好的城市展示效果,为居民提供一个生机勃勃的舞台来展示丰富的日常生活。
打造超底盘体系,促进人与人交往空间,创造全新的烟火主义社区体验。地面层将商业、架空、配套合理规划,形成秩序的空间序列;屋面层通过景观风雨连廊,天桥为媒介串联南北地块,使得社区互联互通;以丰富多维的超级底盘驱动,有机组合建筑、景观、场地,形成多维立体社区,形成别样的城市烟火气。
2.3住宅楼栋
前期我们通过量化分析,推断项目需要5栋超高层住宅可满足容积率要求;根据不同的资源分配合理落位住宅塔楼后,考虑对城市界面和天际线的影响,对规划形态进行优化:
(1)地块临近湘江,考虑建成后沿江城市界面,高层采用点式布置,保证视线的透气感,将视野遮挡影响控制到最小;
(2)通过多维考虑,平衡总图的面宽进深资源同时充分利用江景资源,沿江两栋楼选择南偏西30°,这样一线观景面最大,充分发掘景观优势;
(3) 内部楼栋规避楼栋对角带来的视野问题以及保证地库经济性,选择顺应中间道路,这样也有利于组织社区入口空间。
根据不同的景观资源分配不同的产品,临江楼栋充分利用江景资源设置端厅产品,转角观景阳台提供社交活动空间;内部楼栋南北厅结合端厅设置,沿路避免道路噪音的影响,布置南北厅产品,能享受到内部大花园的地方设置端厅,充分利用景观资源。
3.单体设计
3.1 定制产品
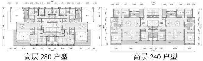
根据跟业主讨论沟通的项目定位,在产品设计前期,我们对周边竞品在售楼盘进行了深入的研究分析,具体结果如下:(1)高层180产品,以南厅为主,追求户型舒适体验,节约型核心筒关注户型得房率;(2)高层240产品:南厅/端厅市场占比均等,双套房设计,注重公区体验;(3)高层280产品:侧厅为主,力求景观视野最大化;(4)目前市场上高层豪宅产品均为大平层产品。
基于以上调研结果,面对市面上“千篇一律”的平层产品,如何打破常规思路,创造新的引爆点?我们仔细研读当地的规范要求,对于高层“客厅上空”打造空中叠墅,长沙当地条文是有相应的规范支撑,我们以此为突破点,对大面积产品进一步创新升级,创造市面上独一无二的公区体验。280产品具备客厅挑空且能够保证户型舒适度的条件;240产品采用大平层产品,在市面上产品的基础上进一步升级。
高层280户型,设计过程中主要有以下创新亮点:
(1)错层挑空客厅:6.6M空中垂直花园,空间延续感指数级扩张;110㎡超大公区体验,给朋友来家里做客提供舒适的活动空间,进入该空间就能有无限对生活的憧憬。
(2)侧厅+270°转角观景阳台:最大化利用侧向景观面,沿江面视线无遮挡,与家人朋友欣赏美丽的湘江美景,喝喝茶聊聊天,“烟火气”的生活在空气中蔓延开来。
(3)豪华主卧套:入门对景小玄关,男女衣帽间,豪华五件套主卫,酒店配置标准。
高层240户型,设计过程中具体亮点升级点如下:
(1)餐客一体,方厅设计:大尺度的社交空间自由互通,四重交流空间,阳台与客厅空间形成室内外互动,给家庭活动带来更多可能性;
(2)全明卫生间:三个卫生间均有采光条件,提升各居室的居住品质;
(3)灵活儿童房布置:双孩房可开可合,满足不同阶段家庭需求,成长迭代型产品。
3.2住宅立面
在立面形体设计时,跳脱出传统住宅立面三段式的立面设计手法,通过利用平面本身的进退关系以及空间关系,形成一种有生命力、呼吸感的立面。顶部塔冠设计包含生命理想的成长性,“虚”空间促成更有力度的建筑形体关系。通高的客厅使立面有了不一样的活力,垂直花园设置给了立面别样的呼吸感,整体造型相互关联增强社会交往的可能性。
银灰色的铝板以及水晶灰的Low-e玻璃,搭配简洁的细部线脚的处理方式,打造现代简约细节精致的公建化立面风格。户型本身所带来的形体关系,使得建筑立面苍劲有力,充满勃勃生命力,活泼生动的立面造型形成湘江东岸一道靓丽的城市风景线。
3.3展示馆设计
展示馆作为项目前期的展示空间,好的选址是成功的第一步。我们通过对基地进行多方位分析,选定地块东北角可以结合规划要求的2300㎡的城市广场整体打造,前场可以通过艺术装置与建筑拓补融合,消解城市与社区僵硬边界,重塑活力社区空间。长沙居民对生活品质的追求同古人所谓的“丘园养素”有异曲同工之处,体现的是一种生活状态也是一种心理状态,我们尝试从古画中寻找意境,缔造四重艺术空间氛围,“望(隐奢入口)—行(前场水院)—游(艺术展廊)—居(艺术会所)”;自由灵活的建筑形体关系,与长沙古建筑开敞自由的布局呼应。
现代化建筑形体,以“书本”为概念,点缀长沙浓厚的文化底蕴。层层递进的空间关系,曲径通幽的廊道展示自然美与人工美的巧妙融合;建筑立面采用温润的大理石+折形玻璃+logo背衬穿孔板,有温度有质感的材料,彰显艺术与隐奢的气质。底层架空层跟连廊局部采用灰瓦坡屋顶的设计手法,材质与形式与当地民居风格统一,木质格栅的引入,更让人感受到建筑的亲切与温润。
结语:
通过对长沙市开福区S8地块项目的复盘,对社区设计有一个基础的总结:在高速周转的设计周期后,目前市场逐渐走向温和,也留给设计更多的思考时间;公共出让的土地逐渐小而精,盲目追求速度不求质量的设计将一去不复返,我们要深层次去挖掘居民真正的诉求,以及从哪些方面通过建筑设计的手法来满足现在人们的精神追求,要从生活本身出发,全方位考虑建筑的空间与功能。
长沙项目我们尝试从不同的维度去创造人与人交往过程中所需要的路径跟空间,通过设计手法使交往行为自然而然的产生,碰撞出新的城市烟火气;关注更深层次的精神追求是我们未来设计中关键一环,需要我们去探索更多的可能性。
参考文献:
[1]彭一刚《建筑空间组合论》中国建筑工业出版社1998年10月
[2]诺伯舒兹《场所精神·迈向建筑现象学》 华中科技大学出版社2010年7月
作者简介:丁银存(1993年1月),女,汉族,江苏省南通市人,本科、建筑师,研究方向:通过场景设计深入探索新城市烟火主义







京公网安备 11011302003690号