- 收藏
- 加入书签
装配式建筑工程中钢筋套筒灌浆连接施工技术
摘要:随着建筑行业的快速发展,装配式建筑因其高效、环保的特点逐渐受到广泛关注。在装配式建筑工程中,钢筋套筒灌浆连接技术作为一种重要的钢筋连接方法,具有施工方便、连接可靠、抗震性能优异等优势。本文结合工程实际,首先介绍该技术的施工原理以及工艺要点,接着研究其施工过程中可能存在的问题以及相应的解决措施,以期为装配式建筑的发展提供技术支持和参考。
关键词:装配式建筑;钢筋套筒;灌浆技术;工艺流程
引言
在装配式建筑工程领域,钢筋的连接方式直接关系到整体结构的稳定性和耐久性。传统的钢筋连接方式,如绑扎搭接、焊接连接和机械连接,虽然应用广泛,但在装配式混凝土结构中却存在局限性。为了适应住宅产业化的发展需求,钢筋套筒灌浆连接技术应运而生,并逐渐成为装配式建筑工程中的主流连接方式。钢筋套筒灌浆连接技术通过铸造的中空型套筒,将钢筋从两端开口穿入套筒内部,并填充高强度微膨胀结构性砂浆,实现钢筋的续接。该技术具有连接强度高、密封性好、施工方便快捷和适用范围广等独特优势。相比传统连接方式,钢筋套筒灌浆连接不仅能显著提高连接节点的强度和稳定性,还能有效防止水、气等物质进入结构内部,保证结构的耐久性。因此,钢筋套筒灌浆连接技术在装配式建筑工程中的应用,不仅提高了施工效率,还增强了结构的稳定性和耐久性,为建筑工程的质量和安全提供了有力保障。
1.工程概况
以福建省内一工程项目为例,该项目构成以多层楼宇为主导,辅以少量高层建筑(具体而言,即15幢多层建筑与3幢高层建筑的组合)。整个项目采纳了预制装配式建筑的构建方式,这一模式契合了当代建筑施工的最新标准,并且达到了节能减排及环境保护的相关要求。在此工程项目的结构框架中,诸如立柱、横梁等关键构造均选用了预制装配式组件。至于这些组件间的联结技术,全部依靠套筒灌浆连接法来实现,这一方法技术门槛较高,但与传统的连接方式相比,不仅更为稳固可靠,而且在成本控制上也更具优势。
2.钢筋套筒灌浆连接施工原理及工艺要点
2.1技术原理
钢筋套筒灌浆连接技术的核心机制在于,首先将附带肋条的钢筋置入一个设计为中空结构的套筒内,随后制备高强度又具备早期强度加速特性的灌浆材料,将其灌注于钢筋与套筒间的空隙中,凭借灌浆材料特有的微膨胀能力[2],激发并传递出正向的压力效应,作用于套筒的内壁及接触的钢筋表面[1]。在实际操作过程中,优选采用的钢筋种类为带肋型,其表面设计有增加摩擦力的粗糙纹理,这一设计增强了钢筋与周围结构间的摩擦力水平,从而确保钢筋轴向力的传递,构成顺畅的传力路径。传力机理示意图如图1所示。
2.2全面检查灌浆孔、排浆孔
灌浆孔作为灌浆料注入的通道,其通畅性直接关系到灌浆过程的顺利进行。在施工前对每一个灌浆孔进行细致检查,确保孔内无杂物堵塞、孔壁光滑无损,以便灌浆料能够顺畅流入套筒内部,与钢筋形成紧密的结合。在灌浆过程中,随着灌浆料的不断注入,套筒内部的空气和多余灌浆料需要通过排浆孔排出,以保证灌浆的密实度和饱满度。因此,施工前必须检查排浆孔的位置是否合理、数量是否足够,并在灌浆过程中密切关注排浆情况,确保空气和多余灌浆料能够及时排出,避免形成空洞或气泡等缺陷[2]。
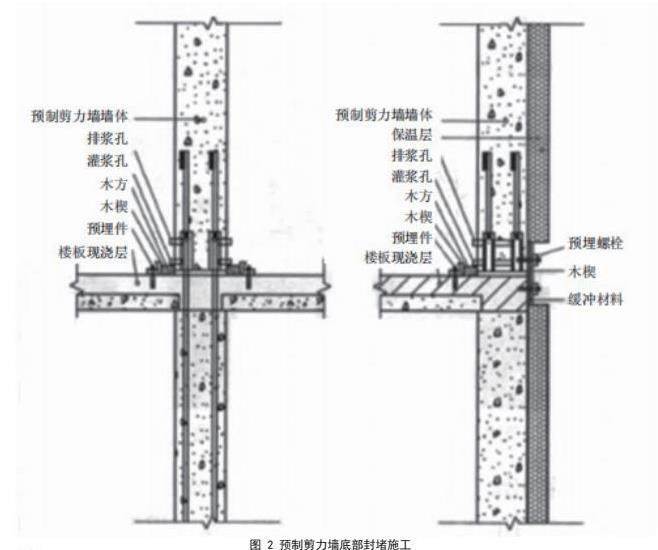
2.3分仓及底部接缝封堵处理
为了促进施工的有序进行对整体仓体实施了分区划分策略。各分区的长度依据所采用的施工技术和方法灵活设定:若采用灌浆机自动化作业,则单个分区长度应控制在1米以内;而若依赖人工操作灌浆枪,则分区长度需进一步缩短至0.3米以内。此分区策略旨在预防因仓体规模过大而可能引发的灌浆不密实问题。
针对仓体底部存在的接缝,采用预埋定位螺栓结合模板的方式,实现了高效且可靠的封堵效果。对于具有两层结构的预制剪力墙板,一旦发现裂缝,立即采用模板环绕四周进行严密封堵。在模板安装过程中,特别注重在上下两层墙板间预先埋设螺栓,通过紧固这些螺栓,不仅强化了外侧模板的稳固性,还利用楼板内预置的螺栓与木楔,灵活调整内侧模板至精确位置,随后进行稳固固定。在内墙板的封堵作业中,选择木楔与方木模板作为封堵材料,确保所选材料尺寸适宜并准确安装到位。以预制剪力墙底部裂缝的封堵为例,预制剪力墙底部封堵施工如图 2 所示。
2.4灌浆
按照既定比例挑选并混合原材料,从而制备出具有高度均匀性的灌浆材料,用于灌浆作业之中。完成搅拌工序后需静置3-5分钟,可有效避免灌浆料中气泡过剩对后续灌浆作业产生不利影响。在混凝土预制构件底部设计了灌浆孔,灌注过程中要全程密切关注浆液流动状态,一旦观察到浆料从特定位置排出,使用塑料堵塞物迅速进行封堵,随后完成灌浆作业。
2.5接头充盈检查
在浆液完全固化之后,将先前安置于灌浆孔与排浆孔处的胶塞予以移除,并随即对孔内浆液的上表面位置进行精确评估。依据标准操作程序,该位置应确保至少高出排浆孔下边缘5毫米以上,以符合质量要求。若实际检测结果显示未达此标准,则需立即组织进行补充灌浆作业,以确保整体结构的稳固与性能达标。
3.钢筋套筒灌浆连接施工中的问题及处理方法
3.1主要问题
灌浆料抗压强度偏低。在部分工程项目中,灌浆料的抗压性能呈现出明显的不达标状态,这一现象直接影响了钢筋套筒灌浆连接结构的稳固性。为了确保连接系统能够维持稳定的性能,灌浆材料在施工固化后应当展现出充分的抗压能力。然而,实际情况却反映出,有若干工程中的灌浆料未能达到预期的抗压强度标准,进而削弱了钢套筒连接的效能与可靠性。
套筒钢筋加工误差偏大。在预制剪力墙的吊装作业完成后,部分结构组件展现出了显著的位置偏移问题。具体而言,竖向套筒连接的钢筋长度出现了超越设计规定界限的情况,同时,钢筋本身也存在明显的错位,使得其难以顺畅地对接至套筒内部,进而无法满足后续灌浆作业所必需的精准对接与密封要求。
排浆孔出浆异常。具体表现为部分预设的排浆通道未能按照预期顺畅地排出浆料,这一现象直接阻碍了灌浆工作的流畅进行,对整体施工效率与效果构成了不利影响。
浆料缺乏饱满性。在灌浆作业中,持压时间的不足成为了一个显著问题,加之浆液注入量的递增,初期阶段排浆孔即遭遇了堵塞难题,进而引发了灌浆料液面的非自然沉降现象。此外,已构建的灌浆通道虽长,但所采用的灌浆料流动性欠佳,难以有效沿既定路径充分渗透,导致套筒内部未能被灌浆料完全填满。特别是在单点灌浆作业过程中,部分座浆料意外转移至套筒空间内,造成了局部灌浆料供应不足的局面,从而降低了整体灌浆的饱满程度。
3.2问题的处理方法
3.2.1灌浆料抗压强度不足的处理方法
从成因的维度剖析,灌浆料抗压强度不足可归因于多方面,其中灌浆料本身质量未达标及回收再利用的灌浆料被不当使用是两大关键要素。此外,试件制备过程中采用的方法若缺乏科学性,如依赖塑质试模进行制作,则可能直接削弱检测结果的精准性。针对此类问题,首要任务是确保灌浆料制备时采用高品质的原材料,以此规避因原材料质量瑕疵而累及灌浆料整体性能的风险。同时,应严格遵循如行业标准,对灌浆料质量实施全方位监控。
3.2.2套筒钢筋误差偏大的处理方法
当竖向套筒连接的钢筋长度超出设计范畴,形成过长情况时,需首先精确测定超出部分的具体尺寸,随后采取切割措施以适应空间限制,确保下层预制剪力墙能够顺利安装。相反,若钢筋长度不足,即偏短,则常通过焊接或植筋的技术手段进行补偿,以符合既定的长度标准。面对钢筋偏位显著的情况,深钻孔技术成为纠偏的有效手段。而对于那些无法直接纠偏的场合,则需局部切除偏移的钢筋部分,随后经过精确校正,若确认无误,则实施植筋作业,直至钢筋长度恢复至原设计要求。
3.2.3排浆孔不出浆的处理方法
在施工准备阶段,逐项检验每个套筒的通透性状态,确保无堵塞现象,一旦发现即刻采取疏通措施,以此作为预防问题发生的首要步骤。若初期即遭遇数个套筒排浆孔堵塞,应立即中断灌浆作业,转而采用吊装技术将墙板转移至指定区域,进行彻底的清水冲洗,并对堵塞点实施针对性疏通。待处理完毕后,将墙板复位,继续推进灌浆流程[3]。面对末端排浆孔异常的情况,灌浆作业虽可持续进行,但需对局部1至2根钢筋进行特殊处理,比如采用钢筋焊接或其他适宜手段,以确保灌浆过程的顺利进行。
3.2.4灌浆料饱满度不足的处理方法
堵塞问题发生的原因包括以下几方面:第一,灌浆材料质量问题。灌浆材料的质量直接影响其流动性和可灌性。若灌浆材料配比不当、含有杂质或过期变质,都可能导致灌浆过程中堵塞的发生。第二,操作不当。在灌浆作业中,若施工人员操作不规范,如灌浆速度过快、灌浆压力不足或持压时间不够,都可能导致灌浆料未能充分填充套筒内部,进而引发堵塞。第三,排浆孔设计不合理:排浆孔的设计对灌浆效果具有重要影响。若排浆孔数量不足、位置不当或孔径过小,都可能影响灌浆料的排出,导致堵塞。
对此要加强预防,根据套筒的尺寸和形状,合理设计排浆孔的数量、位置和孔径。确保排浆孔能够顺畅地排出灌浆料,避免堵塞的发生。在施工前,应对孔道进行彻底的检查和清理。确保孔道内无杂质、无堵塞,为灌浆作业提供良好的条件。选用质量可靠的灌浆材料,并按照规范要求进行配比和搅拌。确保灌浆材料具有良好的流动性和可灌性,降低堵塞的风险。
在灌浆作业中,强化对持压时长的精准掌控是至关重要的,确保持压时间充足以满足工艺要求。同时,应密切关注排浆孔的排出状况,一旦观察到稳定且连续的圆柱状浆料流出,应立即采用胶塞进行妥善封堵。在进行单点灌浆作业时,务必精确测量并控制坐浆层的厚度,以确保灌浆质量。若遇特殊情况需进行灌浆补偿,以剪力墙灌浆施工为例,一种有效的策略是配置高位灌浆漏斗,以此辅助实现更为精准和高效的灌浆补偿操作[8]。
3.2.5检测技术问题的处理办法
鉴于当前灌浆料饱满度检测技术的局限性与应用效果的不足,需要寻求更为简便且结果可信的新策略。一种创新思路是,通过设计套筒的局部破坏性测试来评估灌浆料的质量状态。在具体实施过程中,可在套筒的特定位置打孔,随后运用直观的视觉检查手段来估算灌浆料内部的填充高度,以此作为饱满度的参考指标。同时,为了进一步提升检测效能,还需不断深化对新型饱满度检测工具的研发力度,旨在打造一系列适应性广、性能稳定的检测设备,从而为灌浆料检测工作奠定坚实的物质基础,确保检测流程的高效与准确。
4.质量控制与检验方法
4.1灌浆饱满度检测
利用超声波检测技术,通过在套筒外部布置超声波发射与接收装置,测量声波在灌浆料中的传播时间与衰减特性。这一过程中,需精确控制超声波的发射频率与能量,确保声波能够穿透灌浆料并有效反映其内部状态[4]。若声波传播速度异常或衰减严重,则可能表明灌浆料存在未充满区域或空洞,需进一步排查并处理。此外,引入高清成像技术作为辅助手段,如X射线透视或内窥镜检测,可直观观察灌浆套筒内部情况。X射线透视能够穿透灌浆料,清晰地显示出钢筋与套筒之间的灌浆层厚度及均匀性;而内窥镜检测则适用于对灌浆孔、排浆孔等细微部位进行探查,确保无遗漏。同时,结合工程实践经验,制定科学的抽样检测方案,对关键部位及疑似问题区域进行重点检测。检测结果需详细记录并存档,为后续的质量评估与问题追溯提供有力依据。对于检测中发现的问题,应立即采取措施进行整改,确保灌浆饱满度达到设计要求,从而保障装配式建筑的整体结构安全与耐久性[5]。
4.2真空灌浆法
在灌浆前,利用真空泵对预应力孔道进行抽真空处理,使孔道内达到预定的负压状态,有效排除孔道内的空气和残留水分,减少气泡形成,提高灌浆的饱满度和密实度。选用高质量的材料和设备,真空灌浆孔道通常采用高密度聚乙烯(HDPE)波纹管,因其内壁光滑、密封性好且耐腐蚀,能确保灌浆过程的顺利进行。同时,配备专业的真空泵和灌浆泵,确保真空度和灌浆压力的稳定控制。在灌浆过程中,需严格控制水泥浆的配合比和搅拌质量。水泥浆的流动性、凝结时间、泌水率等性能需满足设计要求,以保证灌浆效果。搅拌好的水泥浆需及时使用,避免长时间放置导致性能下降。此外,灌浆时还需注意操作细节。如灌浆前需对孔道进行彻底清理,确保无杂物残留;灌浆过程中需保持真空泵连续工作,直至灌浆结束;灌浆结束后,需及时关闭灌浆泵和阀门,并拆除外接管及附件,进行清洗和保养[6]。
4.3 施工过程监控
建立全面的监控体系,包括现场视频监控、数据记录与分析系统以及实时通讯平台。通过安装高清摄像头,对灌浆作业区域进行全方位、无死角的监控,确保施工过程的可视化与可追溯性。同时,利用数据记录与分析系统,实时收集灌浆压力、流量、时间等关键参数,为施工质量的评估与调整提供数据支持。加强现场巡查与监督力度[7]。指派经验丰富的技术人员作为现场监督员,对灌浆作业进行全程跟踪与指导。监督员需定期检查灌浆设备的工作状态,确保设备性能稳定、运行正常;同时,对灌浆材料的质量进行抽检,防止不合格材料进入施工现场。此外,监督员还需密切关注施工人员的操作规范与安全防护措施的执行情况,及时纠正不当行为,确保施工安全。建立应急响应机制。针对灌浆过程中可能出现的突发情况,如设备故障、材料短缺、人员受伤等,制定详细的应急预案并定期组织演练。
5.结束语
本文所述工程项目基于性能要求和适应性要求的考虑,选择了钢筋套筒灌浆链接技术,相较于传统的钢筋连接方式,如焊接和机械连接,套筒灌浆连接展现出了独特的优势。一方面,它避免了焊接过程中可能产生的热影响区,减少了钢筋强度的损失,且不受天气条件限制,施工灵活性更高。另一方面,与机械连接相比,套筒灌浆连接在成本上更具竞争力,同时提供了更均匀的应力分布,增强了连接的耐久性和抗震性能。综上所述,钢筋套筒灌浆连接技术作为装配式建筑工程中重要的钢筋连接方法,具有施工方便、连接可靠、抗震性能优异等优势。通过掌握其基本原理、施工技术要点和质量控制方法,并结合实际工程应用情况进行分析和总结,可以为装配式建筑的发展提供有力支持。未来,随着技术的不断发展和完善,钢筋套筒灌浆连接技术将在装配式建筑领域发挥更加重要的作用。
参考文献:
[1]李振荣.装配式建筑冬期钢筋套筒灌浆连接施工技术[J].建材技术与应用,2023(01):42-45.
[2]徐基平,刘印建.装配式建筑工程中的钢筋套筒灌浆连接施工技术[J].工程建设与设计,2022(04):77-79.
[3]吴俊峰.装配式建筑钢筋套筒灌浆连接施工技术的研究[J].科技创新与应用,2020(24):95-96.
[4]孙柏焕,艾洲洋.装配式混凝土结构连接的施工方法研究:以三角安置房二期四区项目为例[J].工程建设与设计,2020(18):155-156.
[5]郭涛.装配式建筑工程中钢筋套筒灌浆连接施工技术浅析[J].中国设备工程,2024,(14):211-213.
[6]廉少波.冬季低温时装配式结构钢筋套筒灌浆连接的可行性研究[J].砖瓦,2024,(06):152-154+157.DOI:10.16001/j.cnki.1001-6945.2024.06.040.
[7]任星权.装配式混凝土建筑钢筋套筒灌浆连接施工技术[J].砖瓦,2023,(09):156-158.DOI:10.16001/j.cnki.1001-6945.2023.09.051.
[8]许菲鹭.套筒灌浆连接技术在预制装配式建筑工程中的运用[J].住宅产业,2021,(08):34-36+59.


京公网安备 11011302003690号